Return to Home PageThe President's House

History of The President's House in Philadelphia

PMHB Articles by Ed Lawler

General History Resources

Legislation

Slavery and Biographies

Please click here for our "Slavery" section.

Maps and Images

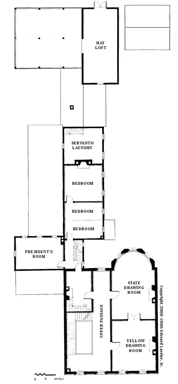
Floor Plans

floorplan
First floor

Second floor

Third floor

Maps

Images

 
historic documents, declaration, constitution, more